جهاز اختبار وفحص بمساحة واحدة ومقابض إسفينية هيدروليكية (سعة: من 600 إلى 2000 كيلو نيوتن)
Servo-Hydraulic Universal Testing Machine
يعتمد هذا النظام تصميماً فريداً بمشغل هيدروليكي علوي التركيز، مما يسمح لأسطوانة تفاضلية مزدوجة بإجراء اختبارات الشد والضغط معاً داخل حيز اختبار واحد وموحد. كما يضمن هيكل التحميل، الخالي تماماً من الارتداد الميكانيكي، مع المشغل القابل لضبط الوضع العمودي، مرونة فائقة في تهيئة فضاء الاختبار واستقراراً تشغيلياً طويل الأمد تحت أقسى ظروف الفحص. ولذا، فقد صُممت سلسلة HUT-D خصيصاً لاختبارات شد المواد المعدنية، وهي تدعم أنظمة التحكم المغلق لكل من القوة والإزاحة والانفعال، مع إمكانية الانتقال السلس بين أنماط التحكم المختلفة. كما يقوم النظام البرمجي بحساب نتائج الاختبار تلقائياً، مع توفير خيارات متنوعة لطباعتها أو تصديرها بصيغ متعددة.
يعد هذا النظام الحل المثالي لاختبار كفاءة وجودة مجموعة واسعة من المواد والمكونات الإنشائية، وعلى رأسها: حديد التسليح (لاختبارات الشد والامتثال للمعايير الهندسية)، المكونات الملحومة (لفحص متانة وصلات اللحام وتحملها)، المصبوبات (لتقييم الخصائص الميكانيكية لسبائك المعادن)، أدوات التثبيت (لضمان أعلى مستويات الأداء والموثوقية)، السلاسل (لاختبارات قوة السحب والتحمل الفائق)، وغيرها من التطبيقات الصناعية الثقيلة.
- ISO 7500-1, ISO 9513, ISO6892, ISO 15630, ISO 15835, BS 4449, ASTM E8, ASTM E 83, ASTM E4, ASTM A370, ASTM A416
- تشغيل هادئ: خفض مستوى الضوضاء بنسبة 15 بالمائة، لبيئة عمل أكثر راحة.
- كفاءة طاقة فائقة: تقليل استهلاك الطاقة أثناء الاختبار بنسبة تصل إلى 74 بالمائة، مما يعني توفيراً جذرياً في التكاليف التشغيلية.
- استغلال ذكي للمساحة: تقليص المساحة المشغولة بنسبة تتراوح بين 8 إلى 29 بالمائة (حسب الموديل)، مما يمنحك مرونة أكبر في تنظيم المختبر.
- عجلة التحكم للضبط الدقيق
- التحكم في المقابض (لفتح وإغلاق المقابض الهيدروليكية بسرعة وسهولة)
- خاصية حماية العينة
- بدء/إيقاف الاختبار
- تحكم الرأس المتحرك (لأعلى/لأسفل)
- العودة للموضع المبدئي
- ذاكرة حفظ إحداثيات نقطة الصفر (موضع البداية)
تصميم موفر للطاقة وصديق للبيئة
بالمقارنة مع الجيل السابق، تقدم سلسلة HUT-D الجديدة قفزة نوعية في الأداء والكفاءة التشغيلية:
هيكل تحميل فائق الصلابة
لقد حققنا طفرة هندسية في السلسلة الجديدة، حيث تم تحسين صلابة الهيكل بنسبة تتراوح بين 120 إلى 188 بالمائة مقارنة بالجيل السابق. يضمن هذا التطوير: دقة قياس متناهية (عبر تقليل التشوه الميكانيكي للهيكل أثناء التحميل، مما يضمن أن النتائج تعكس خصائص العينة وحدها). ثبات تشغيلي فائق (تقليل اهتزازات الماكينة بشكل جذري أثناء الاختبار، مما يطيل عمر المكونات الحيوية ويضمن استقرار النتائج تحت الأحمال العالية).
سرعة فائقة، كفاءة قصوى، وتشغيل سهل
تم تطوير وحدة الطاقة الهيدروليكية وتحسين تصميم الأنابيب والوصلات لرفع سرعة التشغيل في وضع اللا حمل، مما يعزز الكفاءة الإجمالية لعمليات الاختبار. كما يوفر خيار دمج كمبيوتر بشاشة لمس واجهة تحكم حدسية تضمن إعداد الاختبارات وتنفيذها بسرعة وسهولة تامة.
نظام التفاعل البصري الذكي
يشتمل الجهاز على مؤشر حالة ذكي رباعي الألوان (متوافق مع معايير IEC 60073)، يقدم تغذية بصرية واضحة وفورية لحالة الماكينة. كما يساعد نظام الإشارات الحدسي هذا المشغلين على: تجنب الأخطاء التشغيلية (عبر التنبيه الفوري لأي إجراء غير صحيح)، تعزيز أمان العمليات (من خلال مراقبة حالة الجهاز بلمحة سريعة)، ورفع كفاءة الأداء (بفضل سهولة التواصل البصري بين المشغل والماكينة).
وحدة التحكم اليدوية الذكية
تتميز وحدة التحكم اليدوية الجديدة V3.0 بشاشة لمس عالية الدقة بمقاس 3.5 بوصة، تتيح عرضاً فورياً ومباشراً لبيانات الحمل، وموضع الرأس المتحرك، وحالة الماكينة، بالإضافة إلى حالة المقابض. كما تمكن الواجهة المتطورة المستخدمين من تفعيل نظام السيرفو مباشرة عبر شاشة اللمس بلمسة واحدة.
فضلاً عن ذلك، تتيح عجلة التحكم تفعيل نظام السيرفو بلمسة واحدة، كما تدعم ميزة التبديل السريع بين اللغات. وقد تم تزويد الوحدة بمفاتيح وظائف مخصصة تمنحك تحكماً كاملاً في فتح وإغلاق المقابض، بالإضافة إلى إمكانية العودة السريعة إلى الموضع المبدئي المبرمج مسبقاً بضغطة زر واحدة.
| الطراز | HUT605D | ||||
| السعة، كيلونيوتن (KN) | 300 | 600 | 1000 | 2000 | |
| دقة القياس | فئة 0.5 | ||||
| دقة قياس الحمل | ±0.5% من القراءة، نزولاً حتى 1% من سعة خلية الحمل | ||||
| دقة تحليل الحمل | 1/600,000FS | ||||
| معدل التحميل، (نطاق القياس الكامل)/ثانية FS/s | 0.02% -2% | ||||
| دقة تحديد الموضع | ±0.5% أو 0.13 مم، أيهما أكبر | ||||
| دقة تحليل الموضع، مم | 0.004 | ||||
| دقة قياس التشوه | ± 0.5% من القراءة نزولاً حتى 2 % من النطاق الكامل، وفقاً للمواصفة ASTM E83 فئة B-1، B-2 أو ISO 9513 فئة 0.5 | ||||
| دقة تحليل التشوه | ± 1/600,000FS | ||||
| الصلابة، كيلو نيوتن/مم | 520 | 700 | 950 | 1820 | |
| سرعة الصعود، مم/دقيقة | 630 | 340 | 625 | 305 | |
| سرعة الهبوط، مم/دقيقة | 450 | 710 | 1400 | 650 | |
| المسافة بين الأعمدة، مم | 520× 390 | 550×370 | 650×400 | 650×400 | |
| المسافة بين مقابض (فكوك) الشد (H)، مم | 500 | 500 | 600 | 780 | |
| أقصى حيز ضغط، مم | 320 | 300 | 395 | 500 | |
| أقطار العينات المستديرة، مم | ⌀5-⌀12 ⌀12-⌀22 | ⌀5-⌀12 ⌀12-⌀22 ⌀22-⌀32 | ⌀5-⌀12 ⌀12-⌀22 ⌀22-Ф32 ⌀32-⌀40 | ⌀5-⌀12 ⌀12-⌀22 ⌀22-⌀32 ⌀32-⌀50 | |
| سماكة العينات المسطحة، مم | 2-13, 13-25 | 2-16, 16-30 | 2-25, 25-50 | 10-40, 40-70 | |
| بلاطات (أقراص) الضغط، مم | ⌀150 | ⌀150 | 200x200 | ⌀240 | |
| مشوار المكبس، مم | 500 | 500 | 600 | 600 | |
| القدرة الكهربائية، كيلو وات | 4.5 | 4.5 | 12.5 | ||
| مصدر الطاقة | 380V±10%, 50Hz (ثلاثي الطور، 3 فاز) | ||||
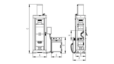
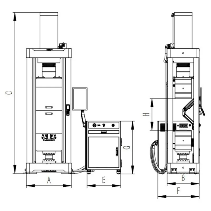
| الأبعاد الكلية (A×B×C)، مم | 600×470×2470 | 730×550×2700 | 870×620×3110 | 1100×800×4055 | |
| وزن الماكينة، كجم | 1100 | 2000 | 4200 | 8500 | |
| أبعاد وحدة الطاقة الهيدروليكية (E×F×G)، مم | 650×800×1010 | ||||
| وزن وحدة الطاقة الهيدروليكية، كجم | 260 | ||||
| زيت وحدة الطاقة الهيدروليكية HPU | زيت هيدروليكي رقم 46، بسعة 108 لتر | ||||
نوفر تشكيلة واسعة من الملحقات لكافة أنواع أجهزة الاختبارات الميكانيكية




